Artisan Urban Hub
Location : Place Lalla Yeddouna, Fez, MoroccoSite Area : 7,400m² (circa)
Design Concept


The concept underlying the design proposal is the sustainable revival of Place Lalla Yeddouna through orientation and identification with the place. This would ensure that the projected urban regeneration of the area will not result in a financial dump, but contrarily it would become a catalyst for the locals and visitors alike through a unique artisan centre.
Public open spaces, whether the square, narrow winding streets and passageways, were studied. The urban regeneration of Place Lalla Yeddouna was based on the restoration and rehabilitation of heritage buildings and conservation of existing public spaces that form an essential pattern of connection and relationship within the square and between parts of the site on either side of the river.
Urban Design Scheme
The overall urban design was developed following a thorough study of the architectural tradition and practice in the Maghreb with special attention to the city of Fez. Furthermore, from the site location plan of the various buildings within the site and their immediate environs and site levels furnished, a computer generated 3-D model was developed.

This model was employed in the study of spaces on either side of the river bank including the La Yaddouna square and streets/passageways leading to it. Furthermore, it proved useful to understand the roofscapes and massing of the site and its neighbourhood.
The proposed overall design concept involved the integration of the existing urbanscape with an innovative, vernacular-rooted design which respects both the Zeitgeist and the genius loci of the place. Fez, besides being one of the few surviving medieval cities of the Mediterranean, is the spiritual capital of the Moroccan nation.
The psychological and physical dimensions of the Place Lalla Yeddouna are interesting. An individual walking the narrow, winding streets/passageways leading to the square, experiences the space gradually and with a sense of exploration. It is an interesting ‘spiritual’ experience. This is further enhanced by the outstanding physical dimensions of the square which, when compared to similar ones in the city, is well sized. Thus, the following design decisions were undertaken:
- An urban design layout which reinforces the present accesses and encourages a link with the river bank which complements the aesthetic experience of both the square and views of and from the river bank;
- Respect the present building line along the square;
- Re-erect buildings with respect to the average height of the present buildings in the square;
- Reinforce the experience of the square when approached from present accesses through an arcade recalling the memory of Moroccan culture and tradition; and
- Re adapt and affect alterations to a central building within the square, which would be erected on a former heritage site, to meet uses assigned by the design brief and to read as a clock tower.
Some of the existing buildings within the historic area partly overlap one another, a spatial composition which is characteristic of this type of vernacular architecture. Such horizontal extensions were introduced and reinforced in the proposed conceptual layout for the re-development of Place Lalla Yeddouna.

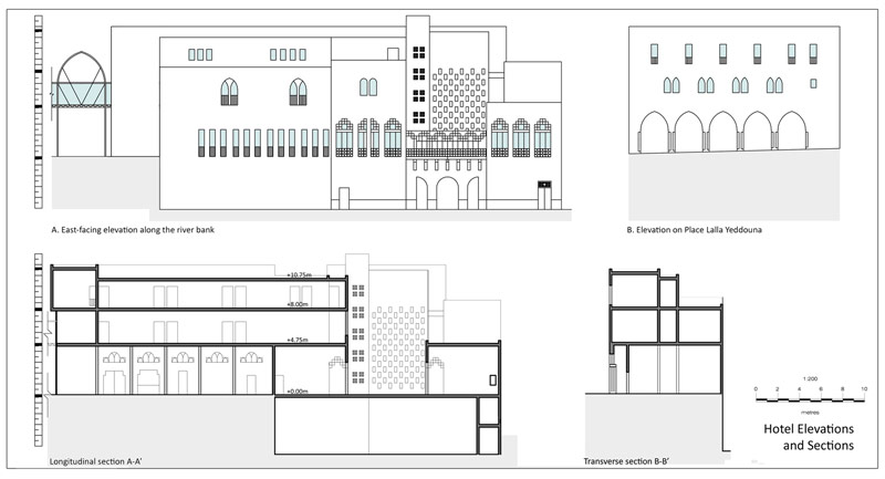
The area north of Bin Lamdoun Bridge is developed into a hotel overlying a restaurant, retail shops and a post office. The area to the south of the bridge houses the artisans’ products exhibition areas partly overlying and partly underlying other uses notable the fire brigade post, site management/administrative office and a restaurant. A small historic structure would be restored and converted into the Medina Information centre whilst a structure poaching onto the bridge would be removed to redesign the entrance to the square with the focus on the skaïa of Lalla Yeddouna after which the square is named. Indeed gestalt theory was applied in the overall design of the elevations overlooking the square whereby the new development complements the setting for the fountain.
The buildings overlooking the river, whilst respecting the overall present building heights, recall the memory of Fez, a fortified mediaeval city. The elevations overlooking the square were kept simple and bare from ornament.
The eastern side of the river has similarly two parts: north off Bin Lamdon Bridge reserved predominantly for eating-out areas whilst the south is predominately reserved for artisans’ products exhibition stores. The remaining outdoor spaces along the river bank south of the restaurant and the artisans’ products exhibition stores, were retained for outdoor eating and open-air artisan exhibition area and/or market respectively.